415 SHOREWAY DRIVEOttawa, ON K4P0G4




Mortgage Calculator
Monthly Payment (Est.)
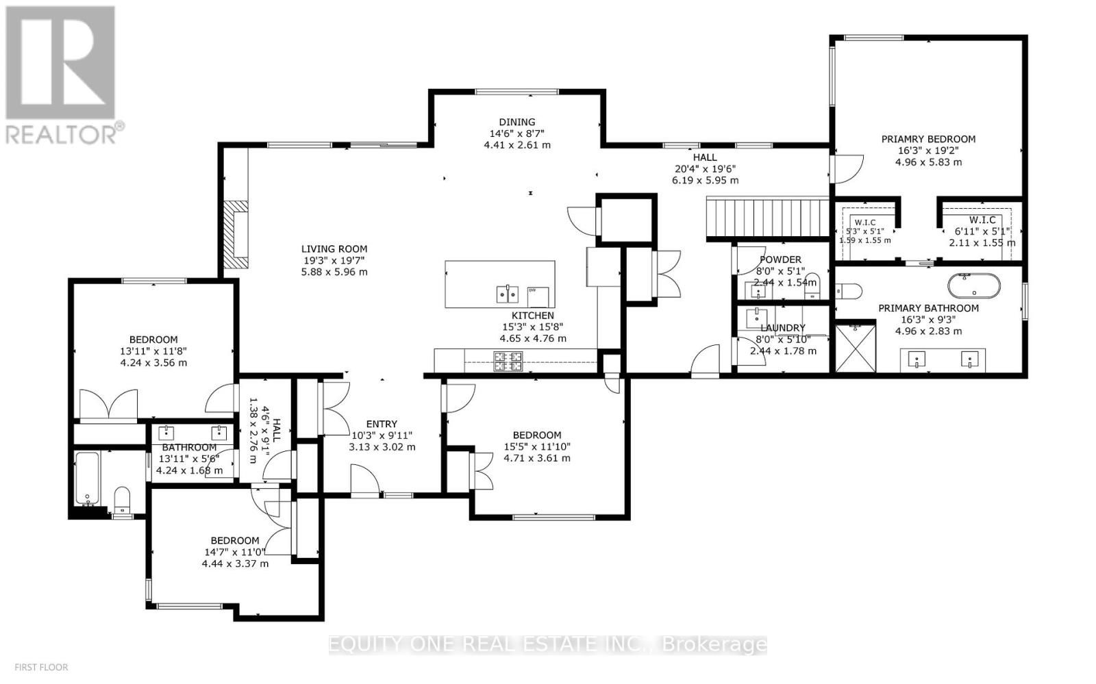
$7,281Welcome to this spectacular 4+1 bedroom, 4 bathroom bungalow in the highly sought-after Lakewood Trails community of Greely where modern luxury meets peaceful estate living. Built by Mackie Homes, this beautifully designed residence offers exceptional craftsmanship, thoughtful upgrades, and an ideal layout. The main level features a bright, open-concept design anchored by a stunning great room with a cozy natural gas fireplace, seamlessly flowing into a designer kitchen with quality cabinetry, stone countertops, and generous prep space ~ perfect for hosting family and friends. Designed for privacy, the primary suite is set on one side of the home, offering a peaceful retreat complete with his & hers walk-in closets and a luxurious ensuite featuring a freestanding soaker tub, glass shower, and heated floors. On the opposite side of the home, you'll find three additional well-sized bedrooms and a full bathroom-ideal for family living or guests. A spacious mudroom with built-in cabinetry provides excellent everyday storage and organization, while the main floor laundry room adds convenience and functionality.The fully finished lower level expands your living space with a large recreation area, dedicated exercise space, additional bedroom, and full bathroom. A separate theatre room with a second gas fireplace creates the perfect setting for movie nights and entertaining ~ ideal for multi-generational living or a private retreat. Car enthusiasts and families alike will appreciate the heated oversized 3-car garage, complete with built-in shelving for storage and direct access to the basement ~ an incredibly practical feature. Storage is abundant throughout the home, making it easy to stay organized and clutter-free. Outside, enjoy a beautifully landscaped backyard, rear patio, and upgraded exterior featuring stone and brick finishes, all set within one of Greely's most desirable communities featuring a community rec centre, pool and gym. Association fee of $400/year. (id:31684)
| 4 hours ago | Listing updated with changes from the MLS® | |
| 4 hours ago | Listing first seen on site |
The trademarks MLS®, Multiple Listing Service® and the associated logos are owned by The Canadian Real Estate Association (CREA) and identify the quality of services provided by real estate professionals who are members of CREA. Used under license.
The trademarks REALTOR®, REALTORS®, and the REALTOR® logo are controlled by The Canadian Real Estate Association (CREA) and identify real estate professionals who are members of CREA. These trademarks are owned or controlled by The Canadian Real Estate Association (CREA) and identify real estate professionals who are members of CREA (REALTOR®) and/or the quality of services they provide (MLS®).
This REALTOR.ca listing content is owned and licensed by REALTOR® members of The Canadian Real Estate Association.

