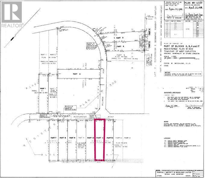
237 WESTBROOK ROADOttawa, ON K0A1L0

Mortgage Calculator
Monthly Payment (Est.)
$3,536Prime opportunity to secure a 1-acre parcel in the highly sought-after West Carleton Industrial Park. Featuring desirable RG4 zoning, this property offers exceptional flexibility for a wide range of industrial uses. Strategically positioned just minutes from the Highway 417 interchange, it delivers outstanding connectivity to Highways 417 and 416-providing seamless access to major markets including Montreal, Toronto, and the U.S. corridor. An ideal location for businesses looking to maximize visibility, efficiency, and growth potential. (id:31684)
| 14 hours ago | Listing updated with changes from the MLS® | |
| 14 hours ago | Listing first seen on site |
The trademarks MLS®, Multiple Listing Service® and the associated logos are owned by The Canadian Real Estate Association (CREA) and identify the quality of services provided by real estate professionals who are members of CREA. Used under license.
The trademarks REALTOR®, REALTORS®, and the REALTOR® logo are controlled by The Canadian Real Estate Association (CREA) and identify real estate professionals who are members of CREA. These trademarks are owned or controlled by The Canadian Real Estate Association (CREA) and identify real estate professionals who are members of CREA (REALTOR®) and/or the quality of services they provide (MLS®).
This REALTOR.ca listing content is owned and licensed by REALTOR® members of The Canadian Real Estate Association.

